Extension and Alterations, Tunbridge Wells, Kent

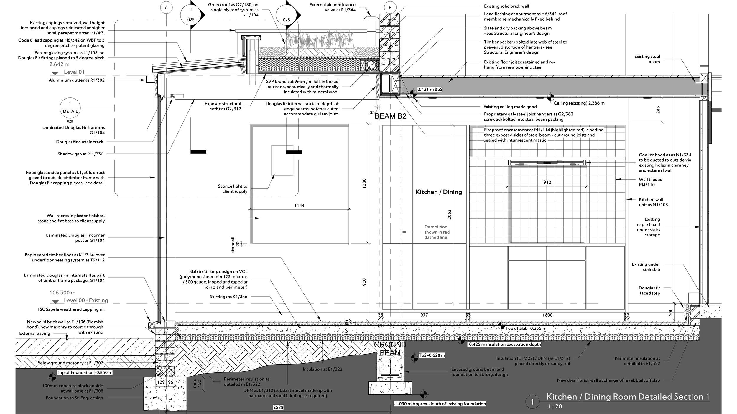
This project is an extension of a mid-terrace house in a Conservation Area on a sloping semi-rural setting edging Tunbridge Wells. The design creates a unified kitchen / dining / living space occupying the whole of the lower ground floor, breaking open the traditional cellular division of space typical of a terraced house and creating a greater connection with the outdoors – both the elements and the landscape – through the introduction of level changes (to floor and ceiling) and glazing. To the front, the enlarged light well becomes a sunken garden, with an elegant, vaulted staircase providing direct access to what is now the principle living area of the house; to the rear, the house now appears to reach for the light with the timber and glass lantern-like quality of the extension.

The project has a strong environmental agenda: the extension is of timber-framed construction, using UK grown laminated larch, and has a wildflower meadow green roof. The refurbishment follows best practice for the thermal upgrade of solid masonry walls, utilising vapour permeable woodfibre insulation and lime plaster internal wall lining.

Details

Design: 2018-2020

Planning Consent: December 2019

RIBA work stages: 0-6

Construction: 2020-21

Project Team

Structural Engineer: HT Partnership LLP

SAP calculations: SAPS4U

Main Contractor: Carl Richard Construction

Timber frame: Buckland Timber

Next
Next

Whole House Retrofit, Penistone, South Yorkshire