New House, Derbyshire Dales.

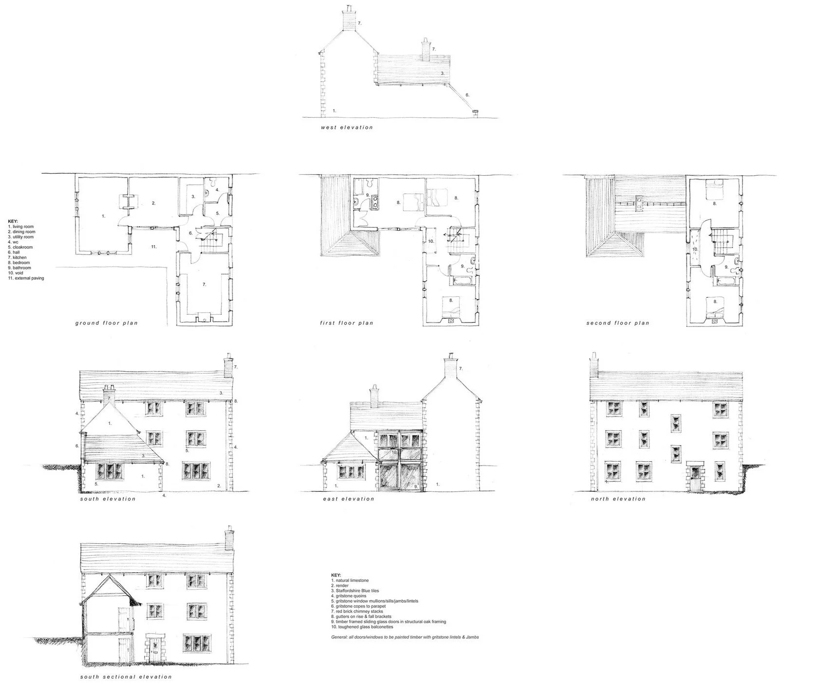
Within a village conservation area, owing to planning restrictions this house is largely steeped in the style of a traditional Derbyshire dwelling - complete with limestone rubble walls, with contrasting ashlar gritstone lintels and mullions, and exposed timber joisted interiors; but brought up to modern thermal standards.

If you are going to do something in a historic style however, it must be done properly and with an eye for the details, and the house exhibits an in-depth knowledge and affection for the vernacular detail of the region. The timber and glass front of the south wing meanwhile introduces a subtle blend of contemporary design into the scheme.

Architectural input was taken as far as RIBA Stage 4 (technical design), with the client taking on a project-managing role during the construction phase. To facilitate as smooth a running of the construction phase as possible, a very comprehensive technical design package was produced. The quality of finish and detailing of the house as built emphasises the value of this approach.   

Details

Architect: Derek Trowell Architects

My role: Architectural Assistant - developing the design with the clients and negotiating with the planning authority, detailed design lead.

Design: 2005-2006

RIBA work stages: 0-4

Construction: (completion) 2007

Project Team

Structural Engineer: Douglas Haddon Associates

Previous
Previous

House Extension, Derbyshire Dales

Next
Next

Barn Conversions, Derbyshire